AnaSayfa
Kurumsal
Hakkımızda
Cem ERÖZÜ
METIN ERÖZÜ
Çalışma Ekibimiz
Projeler
Bizden Haberler
İletişim
EM Katalog
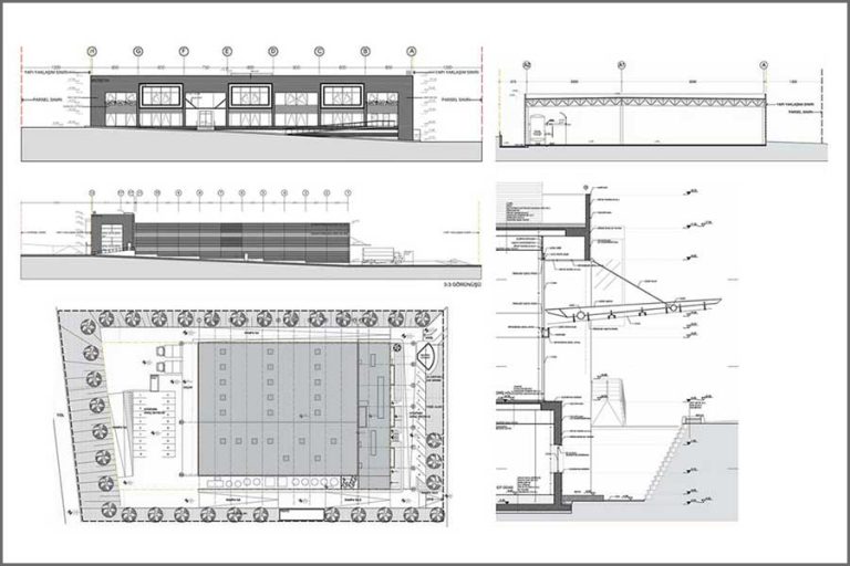
CHEMETALL ÜRETİM TESİSLERİ
PROJE TARİHİ
2006
LOKASYON
TAYSAD OSB / KOCAELİ
İNŞAAT ALANI
5.000 m2
ÇÖZÜM ORTAKLARI
MODERN MÜHENDİSLİKDENİZ PROJE • ÖNEREN MÜHENDİSLİK
BÜTÇE
5 Mio $
İŞVEREN
CHEMETALL TÜRKİYE
ERÖZÜ MİMARLIK İNŞAAT EĞİTİM SANAYİ TİCARET LİMİTED ŞİRKETİ
ALIŞVERİŞ - TİCARET
OTOMOTİV
ENDÜSTRİ YAPILARI
KONUT
OFİS
TURİSTİK TESİSLER
EĞİTİM VE KÜLTÜR YAPILARI
SPOR TESİSLERİ
LİMAN PROJELERİ
DİNİ YAPILAR
İÇ MİMARLIK PROJELERİ
KONSER SALONLARI
MÜZELER
DEVAM EDEN PROJELER
KONSEPT PROJELER
ALIŞVERİŞ - TİCARET
AKTOBE CITY / KAZAKİSTAN
ALTAŞ AMBARLI
ATYRAU CITY CENTER
BİGA ALIŞVERİŞ MERKEZİ
DASTAN ATYRAU AVM
KEMEROVO HİPERMARKET
KRASNODAR HİPERMARKET
MİGROS ATAŞEHİR
MURMANSK AVM
NOVOSİBRİSK HİPERMARKET
PALLADA CITY – MOSKOVA
SANKO PARK – GAZİANTEP
ST. PETERSBURG HİPERMARKET
TUNAMAN ÇARSISI
VERNATSKOVO ALIŞVERİŞ MERKEZİ
OTOMOTİV
BMW GRUP / KONSEPT PROJE
BMW KOSİFLER ANTALYA
BMW KOSİFLER BOSTANCI
BMW KOSİFLER SAMSUN
BORUSAN OTO IMPORT CENTER
MERCEDES ABALIOĞLU DENİZLİ
TOFAŞ SAMTAŞ
ENDÜSTRİ YAPILARI
BAKÜ KARADAĞ ORG. SAN. BÖL. KONSEPT
CHEMETALL ÜRETİM TESİSLERİ
CPL CARTONPLAST
DENTAŞ AMBALAJ VE KAĞIT SANAYİ
DUDULLU OSB. İTFAİYE İSTASYONU
ETF MISIR ARAP CUMHURİYETİ
EVYAP MALEZYA SABUN ÜRETİM TESİSLERİ
EVYAP TUZLA AERESOL
MAXICELLS PLAZMA FABRİKASI
RESİNEX PLASTİK KİMYA SANAYİ A.Ş
TAFTA ETİKET VE İPLİK FABRİKASI
TEPAR A.Ş. / İSTANBUL
UMUR BASIM CENTUR
YALTEKS
KONUT
ABALIOĞLU VİLLASI
AKKAYA APARTMANI
AKTAU KONUTLARI
ASIM KOCABIYIK AP.
ASTANA GARDEN CITY
ATYRAU DIAMOND
BAKÜ DELTA MENZİL TİKİNTİ KOOPERATİF
HAYAT KONUTLARI
KÜÇÜKÇEKMECE KONUTLARI
MİHRİMAH SULTAN VAKFI APARTMANI
NAHÇIVAN KONUTLARI
PALLADA CITY
TOPÖNDER EVİ
ZAVIDOVO TESİSLERİ
OFİS
ALSBACH Öğretmenler Akademisi
BAKÜ OFİS BİNASI
EVYAPORT
FERİKÖY KÜLTÜR MERKEZİ
İ.T.Ü MASLAK KAMPÜSÜ
İ.T.Ü MASLAK KAMPÜSÜ
KOSİFLER KÜÇÜKYALI OFİSİ
PALLADA CITY KOMPLEKSİ
SANKO
SHTOKMAN – MURMANSK / RUSYA
VORONEJ FUAR, AVM, OFİS
VORONEZH CENTRE
TURİSTİK TESİSLER
AKTOBE DASTAN HOTEL
DUDULLU OSB.
ETF KAYAK OTELİ
GİRNE OTELİ
TALYA OTELİ
EĞİTİM VE KÜLTÜR YAPILARI
JASLAN JAKKO OKUL TESİSLERİ
BORUSAN ANAOKULU
DUDULU OSB ANAOKULU
DÜZCE SABİHA ULUSOY KİTAPLIĞI
İELEV 125.YIL İLK VE ORTA
İELEV ÖZEL ANADOLU LİSESİ
LİBYA ASKERİ DENİZCİLİK YÜKSEK OKULU
MEB MUĞLA EĞİTİM KAMPÜSÜ
ZEYTİNCİLİK MESLEK LİSESİ
SPOR TESİSLERİ
DUDULLU OSB TESİSLERİ
LİMAN PROJELERİ
SUMGAYIT AZERBAYCAN
DİNİ YAPILAR
AMBARLI LİMANI CAMİİ
İÇ MİMARLIK PROJELERİ
AKTOBE CITY AVM
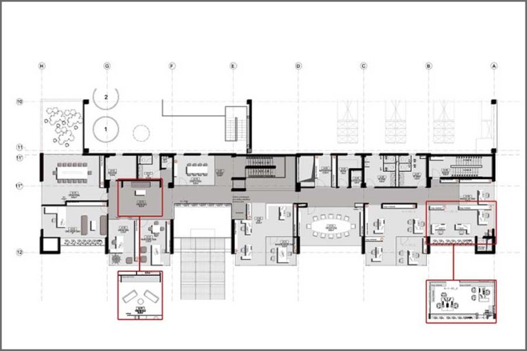
CHEMETALL
CPL
IELEV 125. YIL OKULU
KOSİFLER BOSTANCI
RECORDATI
SCHÜCO EĞİTİM MERKEZİ
KONSER SALONLARI
MUGAM EVİ
MÜZELER
ZEYTİNCİLİK MÜZESİ
DEVAM EDEN PROJELER
KONSEPT PROJELER
BMW GRUP / KONSEPT PROJE
Sosyal Medya:
Facebook
Instagram
Youtube
TOP
Erözü Mimarlık